Instagram

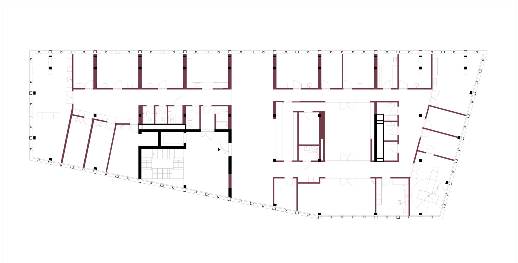
Innenausbau Medarium,
Sursee

Auftraggeber*in:
Medarium AG Sursee

Ort:
Sursee (LU)

Auftragsart:
Direktauftrag

Gesamtleitung Architektur:
kunzarchitekten ag, Sursee

Farbgestaltung:
Sonja Kretz, Aarau

örtliche Bauleitung:
Anliker AG Generalunternehmung, Emmenbrücke

Planung und Realisierung:
2021–2022

Programm:
Innenausbau Praxisfläche für Notfall- und Hausarztmedizin (ca. 730 m2)

Bilder:
Seraina Wirz, Zürich